南北仪器专业提供实验室仪器设备一站式解决方案
功能:
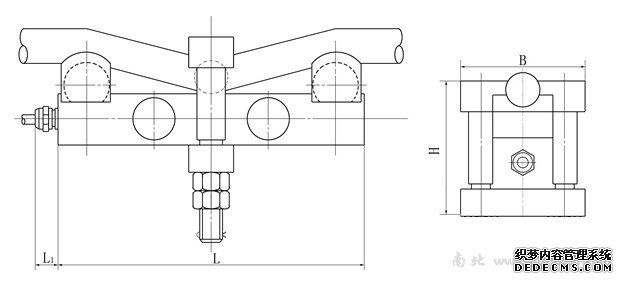
HD旁压张力测试仪安装方便、操作简单、维修容易,于测量钢丝绳的张力。钢丝绳通过U形螺栓固定在传感器上,当钢丝绳受拉力时,力通过导向轮作用于传感器上。
技术参数:
参数
单位
技术指标
灵敏度
mV/V
2.0±0.01
非线性
≤ %F·S
±0.05
滞后
≤ %F·S
±0.05
重复性
≤ %F·S
±0.05
蠕变
≤ %F·S / 30min
±0.03
零点输出
≤ %F·S
±1
零点温度系数
≤ %F·S / 10℃
±0.03
灵敏度温度系数
≤ %F·S / 10℃
±0.03
工作温度范围
℃
-20℃ ~ +80 ℃
输入电阻
Ω
380±2Ω
输出电阻
Ω
350±2Ω
安全过载
%F·S
150%F·S
绝缘电阻
MΩ
≥5000 MΩ(50 VDC)
推荐激励电压
V
10V ~ 15V
外形尺寸:
钢丝绳拉力
量程
钢丝绳直径
H
L
L1
B
B1
1t
1t
Φ6-14
117
160
18
76
45
2t
1t
Φ8-18
117
160
18
76
45
5t
2t
Φ16-26
117
160
18
72
45
10t
5t
Φ24-36
170
260
18
108
68
20t
10t
Φ24-36
175
272
18
112
72
产品结构图:
